404 Wayne AvenueIndialantic, FL 32903
Due to the health concerns created by Coronavirus we are offering personal 1-1 online video walkthough tours where possible.




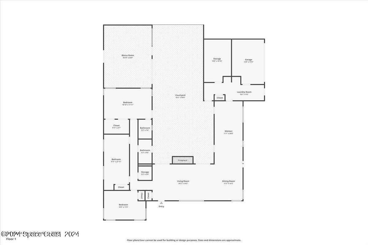
Live the ultimate Space Coast lifestyle in this beautifully renovated mid-century modern home just steps from Indialantic's beaches, shops, and restaurants. Every detail has been thoughtfully upgraded over $300K in improvements while preserving the timeless character of terrazzo floors, vaulted ceilings, and a cozy fireplace. The chef's kitchen shines with quartz countertops, custom cabinetry, and a striking wine wall that doubles as art. Outdoors, unwind by the koi pond, take a dip in the resurfaced pool, or enjoy the spa-like outdoor shower after a beach day. The vibrant bonus room, affectionately that opens up to the pool is perfect for entertaining or family movie nights. With impact windows and doors, a newer roof, new plumbing and new electrical, this home offers peace of mind and versatility. Whether you're relocating, seeking a stylish retirement retreat, or craving a unique second home by the sea, you'll love the blend of modern comfort and timeless design. Hop on your golf cart and enjoy the best of Indialantic living where every day feels like a vacation.
| 3 weeks ago | Listing updated with changes from the MLS® | |
| 3 weeks ago | Status changed to Active | |
| 2 months ago | Listing first seen on site |
The data relating to real estate shown on this website comes in part from the Internet Data Exchange (IDX) program of Space Coast Association of REALTORS®, Inc. IDX information is provided exclusively for consumers' personal, non-commercial use and may not be used for any purpose other than to identify prospective properties consumers may be interested in purchasing. All data is deemed reliable but is not guaranteed accurate.

Did you know? You can invite friends and family to your search. They can join your search, rate and discuss listings with you.