2720 Kirby Circle NEPalm Bay, FL 32905
Due to the health concerns created by Coronavirus we are offering personal 1-1 online video walkthough tours where possible.




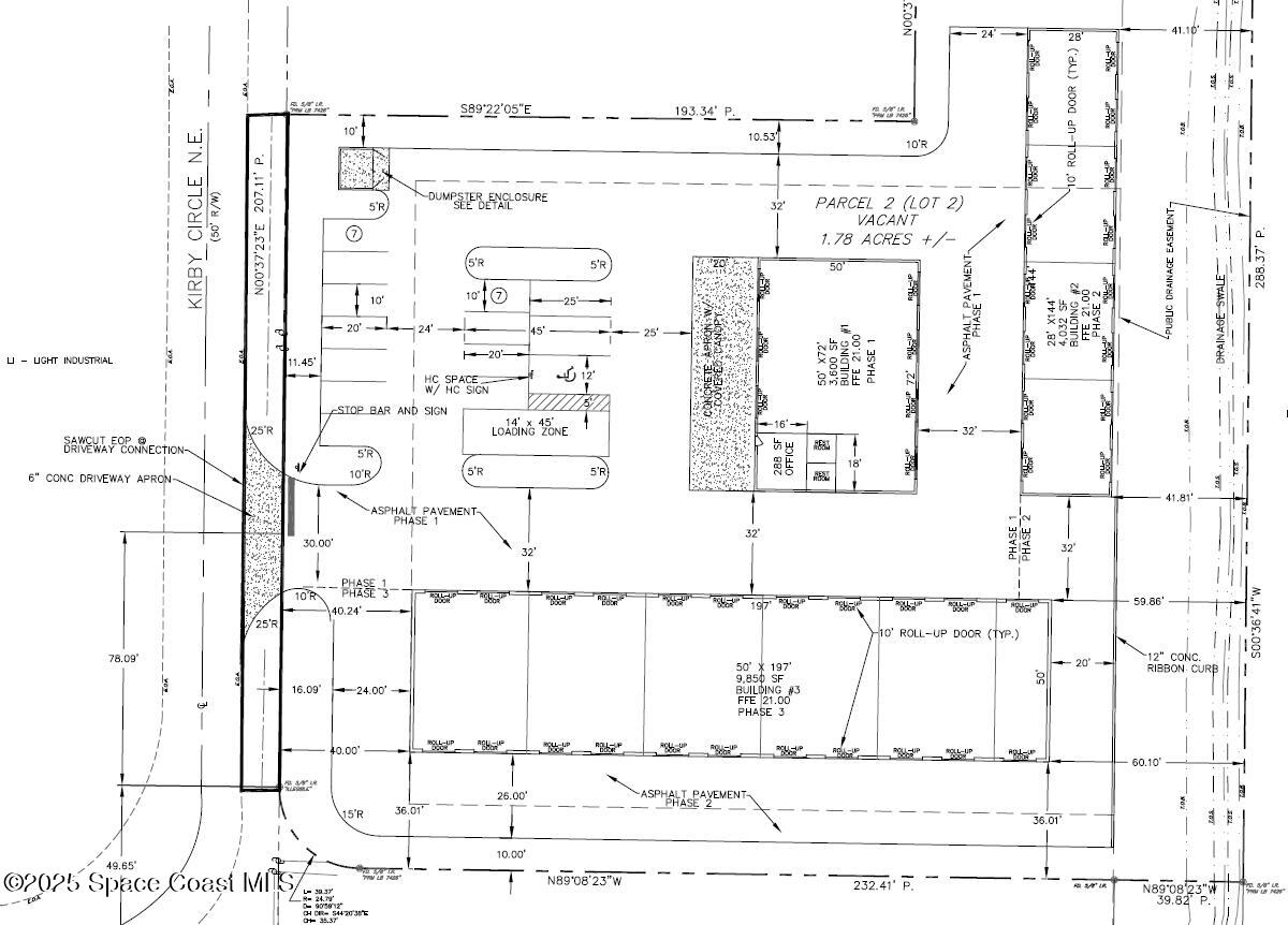
Excellent opportunity to purchase a 100% Occupied income producing multi-tenant warehouse in northeast Palm Bay! There are 11 Tenants, which total 17,482 SF. Each unit is individually metered for electric. Water is common and is included in the CAM. Est. 2025 NOI is $248,736 which is an 8.5% CAP. Property is 100% occupied. The leases are NNN structures. 2023 construction. Total of 45 10' x 10' +/- grade level doors. Interior has concrete flooring throughout. Clear height ranges 11' - 14' +/-. Utilities include City Water/Sewer and 3-phase FPL Electric. Property is strategically positioned just off of Palm Bay Road which is the primary area connector between Interstate 95, Babcock Street and US1. Surrounding employers include L3Harris, ABC Supply, Tibbetts Lumber and Leonardo DRS to name a few. Lots of schools, restaurants, healthcare and childcare in the area. Call today for details!
| 3 months ago | Price changed to $2,925,000 | |
| 3 months ago | Listing updated with changes from the MLS® | |
| 4 months ago | Listing first seen on site |
The data relating to real estate shown on this website comes in part from the Internet Data Exchange (IDX) program of Space Coast Association of REALTORS®, Inc. IDX information is provided exclusively for consumers' personal, non-commercial use and may not be used for any purpose other than to identify prospective properties consumers may be interested in purchasing. All data is deemed reliable but is not guaranteed accurate.

Did you know? You can invite friends and family to your search. They can join your search, rate and discuss listings with you.